203119
Plan Images
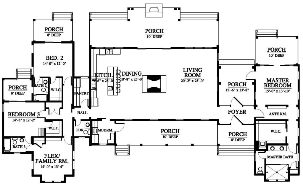
Floor 1
203119_FL1-3.jpg
Plan 3D Model
No 3d Model Available
Purchase Plan
Additional Options

Plan Information

Sapelo Sound (203119)

Total Plan 3070 sf
Bed 4
Bath 3
Car 0
Plan Number: 203119
Total Plan: 3070 sf
Floor 1: 3070 sf
Number of Stories: 1
Bedrooms: 4
Bathrooms: 3
1/2 Bathroom: Yes
Attached Garage: No
Garage Capacity: 0
Length: 61'
7'"
Width: 105'
8'"
Covered Porch: 1302 sf
Elevated: No
Master on First Floor: Yes
Two Masters: No
Mother In-Law Suite: No
Elevator: No
Carport: No
Golf Cart Space: No
Boat Storage: No
Storage Area: No
Workshop: No
Best Views: Front & Back
Tower: No
Special Feature: No
Good for Entertaining?: Yes
Plan Upside Down: No

Our plans are what we call “builder’s sets.” They include everything your builder needs to get started: general information and specifications, foundation and roof plans, floor plans, elevations, wall sections, details, and an electrical plan.

What’s not included: Structural engineering (that should be handled locally to ensure your build meets local codes—every jurisdiction is a little different). We also don’t include plumbing or mechanical diagrams, as those are typically provided by the subcontractors and coordinated through your builder.

Need more? We offer a range of additional services you can add during checkout.

One Time License to Build – This license/fee allows you to build the proposed design one time. It includes a pdf file of the construction documents for the project along with the license to build. The pdf files will typically be emailed within 3 to 5 business days.

Additional licenses may be purchased for larger projects. Please inquire for more information.

Need more than just a set of plans? We offer a range of add-on services to support you through every stage of the homebuilding process—from early design tweaks to energy code compliance and final interior selections. Whether you’re customizing a plan or starting from scratch, we’re here to help you get it right.

Explore available services below:

  • Plan Modifications
  • Custom Design
  • Virtual 3D Model
  • The Configurator
  • Manual J
  • REScheck
  • Site Planning
  • Landscape Planning (Coming Soon)
  • Interior Design Selections (Coming Soon)
  • Structural Engineering

(Learn More)

VIEW SIMILIAR HOUSE PLAN FAMILIES
Plan Customization
The Allison Ramsey Way of House Plan Customization
Choose a Time slot to get Started
FAQ

The study set is a reduced size pdf (11” x 17”) of the floor plans and elevations from the construction documents. It’s not a license to build, but it is very helpful to understand and see the rest of the house and to use as a tool to help develop an initial budget with a builder. We will credit the price back against the final purchase of the license to build.

Our plans are “builder’s sets.” They include general information and specifications, a foundation plan, a roof plan, floor plans, elevations, wall sections, details, and an electrical plan. They do not include structural engineering—that should be done locally to ensure you’re meeting local codes. Every jurisdiction is different.

None. We haven’t run blueprints since 1995. We make black and white copies today on a printer. They don’t look as cool, but they’re much easier to read—and that’s what really matters when you’re building a house.

When you purchase a plan from us online, we’ll email you a PDF of the full construction documents—ready to use. The beauty of digital? You can print what you need, when you need it. No guessing how many sets to order upfront. Need another copy down the road? Just hit print.

Most builders only need a few full-size prints, and many trades are happy working from 11×17 sheets. We’re glad to print and ship copies if you’d like—but honestly, by the time you pay for printing and shipping, it’s usually quicker and more cost-effective to do it locally.

We don’t provide material lists—but the good news is, you likely don’t need one. Most of the time, your builder will work directly with a local supplier to put that together. If you’re planning to build the home yourself, we recommend bringing the plans to a nearby materials supplier—they’ll be able to help you develop a list based on local availability and pricing.

Absolutely! We’d love to help modify your plan. We’ve put together a simple one-page PDF that walks you through the basic process. To get started, reach out to us through our website with your ideas, and we’ll provide an estimate for the modifications.

If you’d rather have a local draftsman or architect handle the changes, that’s allowed—just purchase the plan, and they can make the adjustments for you.

One thing to keep in mind: even if someone else modifies the plan, we still own the design. It’s part of our copyright. It might feel a little strange, but this is how we protect our work from being misused or copied without permission. 

Our plans are drawn with a specific foundation type—such as slab, crawlspace, or piers—but changing it is a simple modification. Many engineers and consultants prefer to work from editable CAD files, and we’re happy to share those when needed. If alternate foundations are already drawn, there’s no charge; otherwise, a small fee applies for our time. Your local engineer can also design a new foundation plan under your one-time license to build. Soil, climate, cost, and builder preference will help determine which foundation type is right for your home.

It’s part of what sets us apart. Our drawings and design system are worth far more than the cost of a single-build license. We love modifying our own plans—and we believe no one does it better or more affordably. (After all, you wouldn’t take your car to the dentist for a tune-up, right?)

We’ve seen what happens when someone else tries to alter our designs—and it’s rarely an upgrade. Very few can match the level of detail, care, and timeless design you get with an Allison Ramsey house plan. Trust us—you’ll be glad you kept it in the hands of the original designers.

Yes, absolutely. We’re happy to work with your engineer and share our CAD files so they can complete their part of the work. Here’s how it goes:

We’ll just ask that your engineer reach out to us directly. Before we release the file, they’ll need to sign a licensing agreement confirming that the file is for your project only—it can’t be modified or reused for any other purpose. Once that is signed, we’ll send it over.

We’re glad to collaborate—we just want to make sure everything stays protected and above board.

We’re often asked about stamped drawings for permitting. Our plans are designed to meet the International Residential Code (IRC), but each jurisdiction may add requirements for local conditions like wind, seismic, or climate concerns.

A stamp isn’t just an ink mark—it’s a licensed professional’s confirmation that all drawings comply with local codes and permitting standards. Because requirements vary so much (Charleston vs. Knoxville vs. Oklahoma City), we cannot stamp for every location.

Instead, we recommend working with a local Structural Engineer or Architect who can review our Construction Drawings and provide the necessary stamped documents. This is standard practice across the country, and your builder is likely already familiar with the process.

Through The Allison Ramsey Way, we aim to simplify the steps. We also offer add-ons like Structural Engineering, ResCheck, and Manual J services through licensed professionals when available.

Whew—that’s a lot of questions! But we’ve got you. When it comes to cost, the truth is: there’s no one-size-fits-all answer. Anyone who tells you otherwise (especially while selling house plans) isn’t being entirely honest. So here’s what we recommend instead:

Start local. Ask a few builders in your area what the typical cost per square foot is for the kind of home you’re hoping to build. That’ll give you a ballpark. Then, head over to our site and look for plans that fit your general needs—especially by square footage at this stage.

Once you’ve found a plan or two you like, purchase a study set. These are 11×17 prints of the floor plans and elevations—not for construction, but perfect for budgeting. Share them with a few builders you’re considering and let them know your expectations for the home—things like flooring, appliances, trim level, and overall finish quality. Ask for a rough budget, not a formal bid, based on their experience building at that level.

If you get feedback from three or four builders, you’ll not only come away with a realistic understanding of costs, but you’ll also have a feel for which builder might be the best fit—without the pressure of competitive bidding.

We’ve been recommending this approach for years, and it works. Once you feel confident in your direction, go ahead and purchase the full plan set and move into final pricing.

And when it’s all said and done—send us photos of your new home. We love seeing how our designs come to life.

While it may be true, if you didn’t buy the license to build, it’s illegal. You have to purchase the right to build the house even if someone else draws the plans. What you’re really buying from us isn’t just a set of drawings—it’s the design itself, which is protected intellectual property. The plans are simply the tool we use to communicate how to bring that design to life.

Unfortunately, no. We upload photos as soon as we receive them from clients, but if you don’t see images for the specific plan you’re interested in, it likely means we haven’t received any yet.

In the meantime, we suggest browsing photos from other homes in the same plan family—they often share similar features, and those images can give you a good sense of what to expect.

Probably not—but there is a reason why. Most of our homes are designed for individual clients, so it’s rare that we have model homes open to tour. Every now and then, one might be available—but it’s unlikely to be the specific plan you’re hoping to see.

Our Guarantee

Every plan on our site was designed by the Allison Ramsey team, backed by over 30 years of architectural experience. We’re not just here to sell you a house plan—we’re here to guide you through the process and help make your home build as smooth and successful as possible.