Allison Ramsey Architects
https://allisonramseyhouseplans.com/plans/terrebonne-183189
Terrebonne (183189)
Plan #183189
Total Sq Ft
3,543
Bedrooms
3
Bathrooms
3
Width
Plan #183189
Terrebonne (183189)
From $1,750
55' 4″
Depth
63' 6″
Stories
2
Plan Number
183189
Stories
2
Building type
House
Foundation
0
Floor 2
1,759 sf
Floor 3
1,784 sf
Bedrooms
3
Bathrooms
3
1/2 Bathrooms
Yes (1)
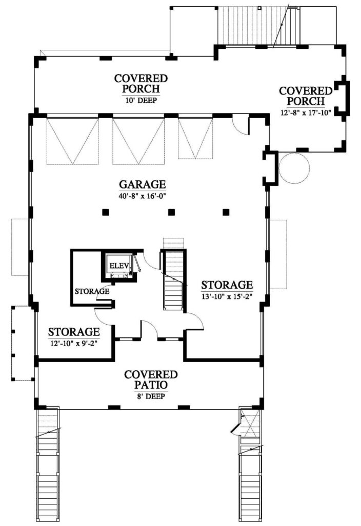
Garage
1,750 sf
Width
55' 4″
Depth
63' 6″
Best view
Front, Back
Covered Porch
1,107 sf
Screened Porch
730 sf


Featured Photo




Use your mouse to rotate and zoom the 3D model
Plan #183189
11″×17″ PDF of floor plans & elevations for budgeting. One credit per study set purchase: it applies a single time toward the full plan license for this design at checkout — not toward another study set.
Total Sq Ft
3,543
Bedrooms
3
Bathrooms
3
Width
55' 4″
Depth
63' 6″
Stories
2
Learn how our team helps you customize your dream home
30-minute private call with one of our architects
Times shown in your local timezone. Weekend dates use a dashed border when selectable.
More variations of the Terrebonne plan.